Urla Bağ Evi

İzmir, Türkiye

Proje Özeti

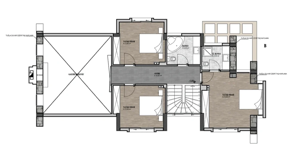
Elbette yapının sahibi üretken bir ressam olunca, onun yaşantısıyla uyumlu bir ev tasarlamak gerekiyordu.Proje alanı Urla, Özbekte kendine özgü bir yol ile ulaşılan doğal bir arazi içinde konumlanmaktadir. Geniş bir manzaraya sahiptir. Yaşam alanı, içinde üzüm bağı bulunan ve şarap üretilen parselin güneyine, yola paralel olarak yerleştirlımiştir. Salon ve teras gibi özel alanlar bağ tarafındaki manzaraya bakarken; giriş, mutfak ve ıslak hacimler yol tarafina doğru kurgulanmıştır. Yetişkin iki çocuğa sahip bir aile evidir. Aynı zamanda çalışma ofisi olarak kullanılan evin yaşam alanlanının yanı sıra bodrum katında bir de resim atölyesi planlanmıştır. Salon; taş duvann ortasında bulunan şömine, üst kattan görülebilir galeri boşluğu ve kırmızı boyalı çelik çatı makasının yapılmasıyla mekansal olarak zenginleştirilmiştir.Plansal çözüm olarak; ofis, girişe yakın ve merdivenin bir tarafinda bulunurken; mutfak, yemek alanı ve salon üçlüsü merdivenin diğer tarafindadir. Usta katta ise ebeveyn yatak odası taş duvardan dişa doğru pat-atılmışken (ki bu haraketin amacı girişten gelen geçeni görmektir) diğer iki yatak odası simetrik bir şekilde merdivenin diğer tarafindadır.Yapının her iki yanal yüzeyinde, farklı açıda ve tüm yapı yüksekliğince bir bütün olarak devam eden, bulunduğu yöreye ait Urla Taşından duvarlar yapılmıştır.

Tasarım Yaklaşımı

Modern Mimari & Taş Yapı